Projects
About
Contact
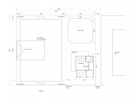
Risc Takers SXM Soccer Club
Year
2017
Location
Wegelegen, SXM
Status
Concept Design
Similar projects
Infinity Villas Indigo Bay
Villa O Lot 84 Skyline Drive
The Beach House
Villa 13B
Fuld House